Проектирование газоснабжения является одним из основных направлений деятельности Группы Компаний НПК «Завод модульного энергооборудования». Мы готовы разработать проект для систем поставки газа частного загородного дома, промышленного предприятия, котельной и прочего.
При разработке проектов систем газоснабжения наши специалисты используют современное и высокоэффективное программное обеспечение. С его помощью мы можем проводить сложные расчеты в максимально короткие сроки с учетом огромного количества факторов.
Обращаясь к нам, вы можете рассчитывать на такие преимущества, как:
- Порядочность и ответственность. Наши специалисты всегда выполняют даже самые труднореализуемые задачи строго в оговоренные сроки;
- Высочайший уровень профессионализма.
- Решение даже самых сложных задач. Какие требования бы не выдвигал к нашей работе заказчик, мы всегда готовы оправдать надежды наших клиентов.
Проектирование газоснабжения в Орехово-Зуево будет проведено с учетом требований каждого клиента. Мы подберем наиболее правильное решение, которое позволит вам получить действительно надежную, качественную, функциональную и недорогую газовую систему для вашего объекта.
Проектирование газоснабжения: исходные данные для проекта газоснабжения
Проектирование газопроводов в Орехово-Зуево проводится только после того, как будут получены исходные данные об объекте строительства. Связанные с этим работы могут включать в себя:
- Проведение топографических работ (от пяти тысяч рублей – 1га);
- Осуществление инженерно-геологических изысканий (стоимость бурения составляет от восьмисот рублей за один метр);
- Расчет топливного режима котельной, расчет требуемых лимитов газа – от 5000 руб.;
- Получение лимита газа от различных компаний-поставщиков природного топлива (ООО «Мособлгаз», ООО «Мосгаз» ООО «Лукойл», ЗАО «Газпром газораспределение», ООО «Газпром межрегионгаз», ООО «Газпром трансгаз», ООО «НОВАТЭК») (от двадцати тысяч рублей);
- Получение технических условий (от трех тысяч рублей).
Важно учесть, что стоимость выдачи ТУ по тарифу ресурсоснабжающей организации заказчик оплачивает отдельно.

Проектирование систем газоснабжения: стоимость проектных работ, а также согласования соответствующей документации у компании-поставщика газа
Проектирование систем газоснабжения выполняется специалистами нашей производственной Группы Компаний НПК «Завод модульного энергооборудования», включает в себя:
- Подготовку к разработке проекта и сбор необходимой информации;
- Проектирование наружного распределительного газопровода (от десяти тысяч рублей за сто метров);
- Проектирование наружного газопровода и его подключения к объекту (от пяти тысяч рублей);
- Разработку проекта проведения системы газоснабжения внутри строительного сооружения, включая расстановку специализированного профессионального оборудования, внутреннего газового оборудования (от семи тысяч рублей);
- Выполнение Экспертизы Промышленной Безопасности в Западно-Уральском управлении Федеральной службы по экологическому, технологическому и атомному надзору , а также регистрация этого документа в Ростехнадзоре (от двенадцати тысяч рублей).
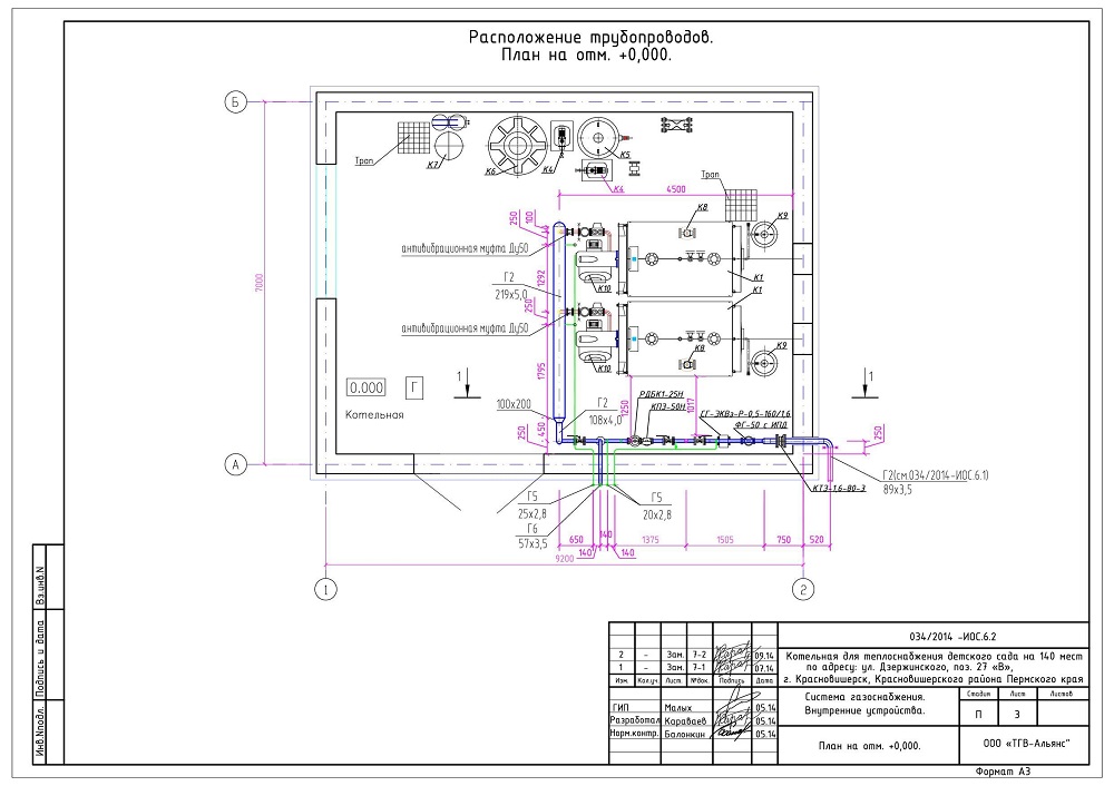
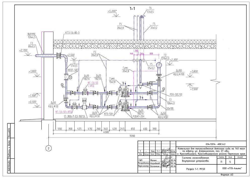
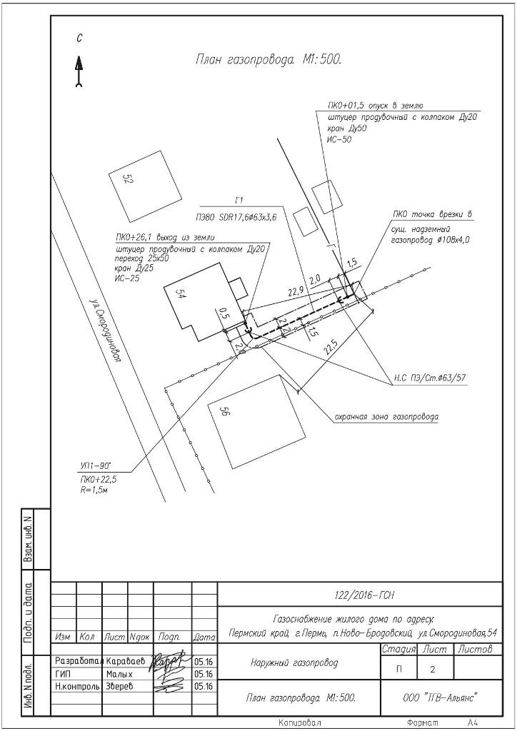
Стадии проекта газоснабжения частного дома, промышленного здания или объекта, находящегося в процессе строительства
Проектирование газопроводов в Орехово-Зуево и Орехово-Зуевском городском округе, проводимое специалистами нашей компании проводится в несколько этапов, а именно:
- Этап первый. Выполнение топографической съемки территории объекта газификации – инженерно-геодезические изыскания;
- Этап второй. Проведение инженерно-геологических работ на объекте;
- Этап третий. Выполнение расчета требуемого лимита газа (обоснование топливного режима; определяются необходимые значения расхода в единицах кубический метр за час, а также миллион кубических метров в год);
- Этап четвертый. Получение выделенного лимита газа от предприятий, являющихся поставщиками энергетического ресурса;
- Этап пятый. Получение технических условий на проведение проектных работ и точку врезки у соответствующей компании-поставщика природного топлива;
- Этап шестой. Получение акта о выборе земельного участка под строительство системы газоснабжения (оформляется в администрации населенного пункта, где должны проводиться работы);
- Этап седьмой. Разработка всего комплекса необходимой проектной документации;
- Этап восьмой. Согласование разработанного проекта газификации объекта в представительстве соответствующей компании-поставщика природного топлива;
- Этап девятый. Прохождение Экспертизы Промышленной Безопасности проектной документации (требуется для промышленных предприятий, деятельность которых согласно законодательству может быть отнесена к разряду опасных);
- Этап десятый. Регистрация заключения Экспертизы Промышленной Безопасности проектной документации в Ростехнадзоре (требуется для промышленных предприятий, деятельность которых согласно законодательству может быть отнесена к разряду опасных).
После прохождения всех вышеописанных этапов заказчик может начинать процесс строительства, монтажа, прокладки газопровода.